
Each garden is designed around the client, the setting, and how the space will be used.
Take a look at some of my recent projects, where I had the opportunity to push boundaries, try new things, and bring my clients' dreams to life.
London
The planting scheme has been designed to create a visually
rich, sensory garden that provides interest throughout the
year while remaining relatively low maintenance. A
balanced combination of climbers, shrubs, perennials,
structural foliage plants, bulbs, and edible plants has been
selected to maximise visual impact within a compact
outdoor space.The planting strategy focuses on resilient species with long
flowering periods, attractive foliage, and seasonal variation.
Maria did us the most wonderful planting plan for our garden in London. Thoughtful, aligned with what we wanted and easy to follow (even for beginner gardeners). Can't recommend her enough!
Sarah Mercer, London
Dingwall
This garden blends seamlessly into the surrounding Highland landscape, offering a sense of openness and calm, while also ensuring privacy, comfort, and practicality for both the property owners and guests.
This is a garden designed for modern life: low-maintenance, ecologically sensitive, visually enriching, and deeply connected to the land it inhabits. It enhances views from within the home, provides shelter and seasonal colour, and quietly complements the architecture it surrounds—an outdoor sanctuary that gently breathes with the landscape rather than competing with it.
We were fortunate to find Maria when we were struggling to plan the garden for our newly built house. Not really sure what we wanted from the garden, Maria helped us structure the requirements and came up with a perfect plan that will suit us down to the ground. The garden is still very much a work in progress but it's lovely to watch it take shape.
Petra Laveno, Dingwall
Invergordon
The design achieves a balance of structure and softness, permanence and change. Shrubs provide the backbone, while perennials and grasses shift and evolve through the seasons. The flowing lines of the borders and lawn encourage a sense of movement, while the short pathway and archway create a welcoming entrance to the back garden. Lighting and crafted accents add atmosphere and individuality, while vertical planting and wildlife features bring richness and vitality. The integration of existing plants ensures continuity and maturity, while new planting breathes fresh energy into the space. The result is a garden that feels harmonious, dynamic, and full of character — a space that is not only looked at but lived in, experienced, and enjoyed across the seasons.
I am delighted with the work carried out by our garden designer. From our very first meeting, it was clear that Maria listened to our ideas and understood what we wanted to achieve. Her creativity and vision gave us a plan to transform our uninteresting front garden into an interesting and manageable space. The entire process was professional. She offered thoughtful suggestions for plants and materials and dealt with every aspect of the project in an efficient and timely manner. She provided detailed plans for both the planting and hard landscaping for a reasonable price and exceeded our expectations. I would not hesitate to recommend Golden Leaf Horticulture to anyone seeking to create a unique and inspiring outdoor space.
Steven Lloyd, Invergordon
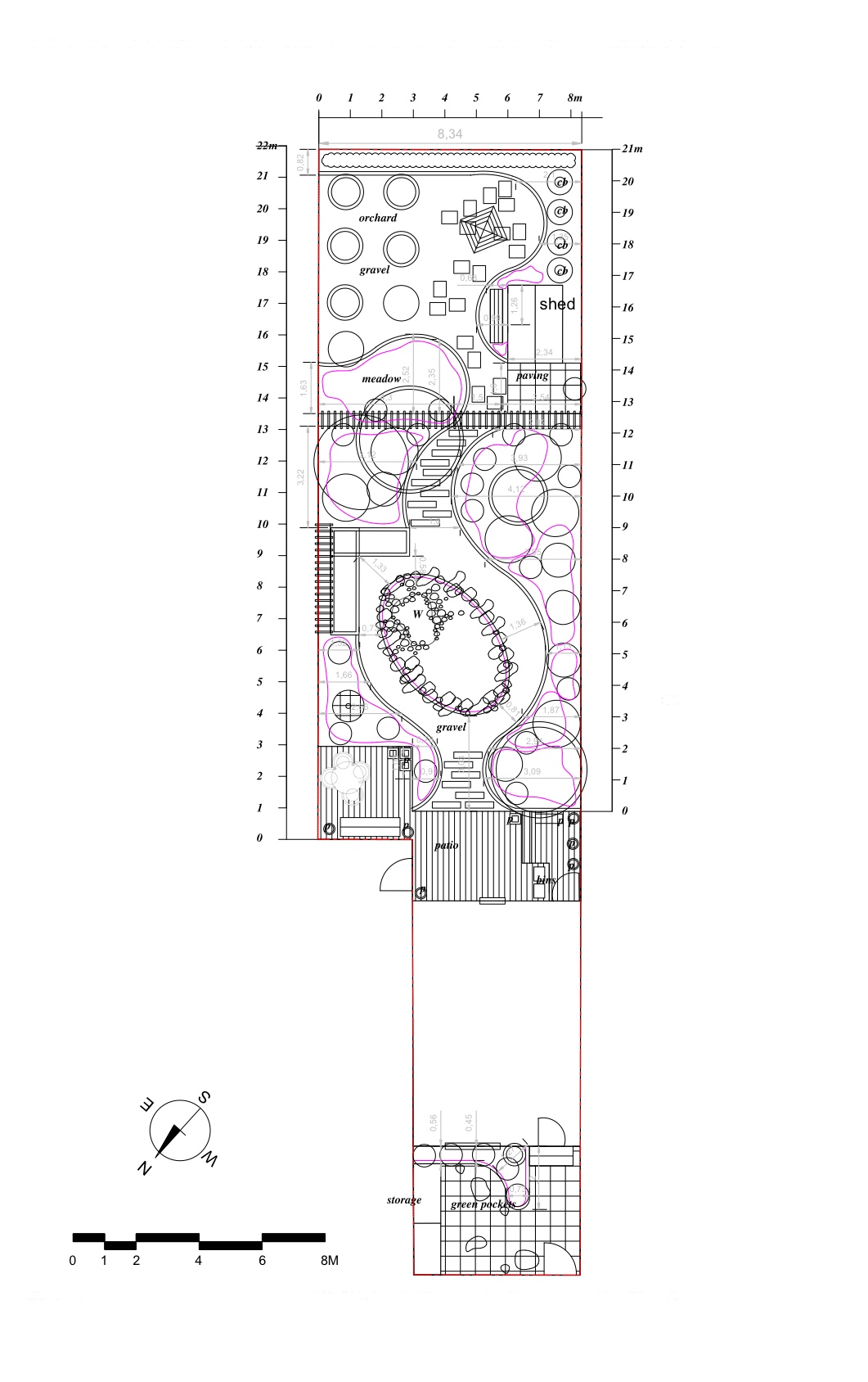
Inverness
This Inverness garden offers far more than a series of planted spaces—it is a living, breathing extension of the home; a modern urban jungle nestled within the city. With its layered planting, lush textures, and thoughtful structure, the garden evokes a sense of being far removed from the everyday, despite its compact and accessible urban location.
Every element has been carefully considered to serve multiple purposes. From the green-roofed shelter in the front garden that merges utility with ecological benefit, to the secluded patio framed by aromatic herbs and delicate grasses, the space invites quiet moments of reflection and sensory engagement. The winding borders, mature trees, and densely planted pond area create a rich, immersive atmosphere that supports a diverse range of wildlife. Bees, butterflies, frogs, and birds are not just visitors here—they are part of the garden’s very rhythm and identity.
The rear garden flows naturally from ornamental abundance to productive intent, with spaces dedicated to growing food, composting, and encouraging pollinators. Yet, even in these more practical zones, aesthetics are never compromised. Fruit trees bloom beside wildflower meadow; compost bins are tucked into clean corner; a simple bench allows for rest and observation. This is a garden that works, but also one that speaks.
Maria has recently done a detailed design for my Inverness-based front and back gardens. When I bought my house last year the garden was uninspiring. It was mostly laid to stones over a membrane, with a single eucalyptus tree, a rather ugly conifer and a couple of overgrown shrubs. With the help of my builder, I put in some infrastructure, in the form of decking, a handmade shed and better fencing. I also put in plants that kind friends had donated from their gardens, or that took my fancy when visiting the many wonderful garden centres in the area. But I knew that I had reached the limit of my garden planning potential and that I risked wasting a lot of time and money if I continued with this rather unplanned and unstructured approach. I looked online for a local garden designer and found Maria.
I knew as soon as I met Maria that I wanted to work with her and that we would get on well together. Her energy and enthusiasm for the project, the way she understood immediately what I was trying to achieve, and her knowledge of plants and gardens, filled me with confidence from the start. We agreed to go ahead with a design project covering not just the layout of the space and the way the garden would flow, but also a planting plan for the many different growing spaces the garden offers.
As she was developing the design and planting plan, Maria checked back regularly and then shared several different outline design options, from which I chose one. She has just delivered the detailed design and planting plan and I am delighted.
I know it will take some time and money, and much physical effort, to realise the vision. But, with Maria at my side and with the support of my builder, Steve Glover, I have every confidence that I will achieve my dream of a garden that is beautiful, as well as being insect and bird friendly. I am excited to begin work and to see my new garden materialize.
Annette Mercer, Inverness
Brora
Relaxed, woodland-inspired garden in Brora where every corner feels like a little escape. Winding wooden paths lead you past ferns, Helleborus, and seasonal bluebells, with cozy seating spots and playful art pieces adding charm and surprise along the way. A hidden wooden pavilion tucked among the trees invites you to pause, unwind, and take in the peaceful surroundings.
Stone steps and patios link the garden’s different levels, creating smooth, easy access while blending beautifully with the natural landscape. Borders of shrubs and carefully placed boulders offer privacy and visual interest, even in the quieter winter months. Wrought iron and wooden fences add a touch of structure and security without spoiling the open, airy feel of the space.
Paths lead naturally to a gravel car park tucked among greenery, designed to be practical yet in tune with the woodland aesthetic.
For those staying in the holiday pods, custom patios provide a cozy spot to relax outdoors, with room for benches, chimineas, and potted plants. Every detail of this garden is designed for exploring, relaxing, and enjoying nature in style.
Working with Maria on our complex garden project was a joy. From the initial consultation to the design and finalisation stages, Maria was collaborative and creative, taking time to understand our one-acre property and our needs as clients. The breadth and depth of her experience and knowledge were then translated into wonderful (and practical) blueprints for our garden transformation. We can now confidently purchase plants and landscaping materials - saving on expensive mistakes. A great experience and highly recommended.
Fiona Docherty, Brora
Alness
This garden in Alness is designed as a sequence of welcoming, purposeful spaces that balance beauty, privacy, and family life. The front garden offers a calm, green sanctuary from the street, with layered planting, curved paths, and carefully chosen feature plants creating year-round interest and a sense of seclusion. Sensory elements, wildlife features, trellised greenery, and intimate seating transform the entrance into a lush, inviting space that reflects the character of the home and celebrates seasonal change.
The rear garden is a vibrant, hardworking family landscape, thoughtfully arranged to support growing, gathering, and relaxing. An expanded patio with outdoor kitchen and storage anchors the space, while raised beds, fruit planting, and a pergola-lined path add structure, productivity, and visual rhythm. Practical elements are seamlessly integrated, allowing the garden to feel organised yet relaxed, and lighting extends its use into the evening, creating a warm and enjoyable outdoor environment throughout the year.
Tarlogie
This garden neasr Tain unfolds along a gentle central axis, beginning at the pergola and winding through stony paths and a wooden walkway before opening to sweeping views of the Dornoch Firth. The front garden blends prairie-style planting with gravel, stones, and large rocks, creating a natural rhythm that changes with the seasons. Summer brings vibrant colours and textures, while winter highlights sculptural grasses, seed heads, and the subtle beauty of stone.
Shrubs, dwarf trees, and shade-loving plants are arranged to feel spontaneous yet thoughtful, framing views, guiding movement, and providing privacy. A Japanese-inspired border near the patio introduces a serene focal point, centred on a Japanese maple and underplanted with evergreens and moss-covered stones. The back garden transitions into a spacious lawn with meadow potential, sunny herbaceous borders, and woodland-inspired edges that soften boundaries. Winding gravel paths lead to a pergola and seating areas, inviting quiet reflection, while productive spaces for vegetables, composting, and chickens are seamlessly integrated into the natural flow.
Planting throughout is hardy, low-maintenance, and carefully selected to thrive in both sun and shade. Seasonal bulbs, climbers, and groundcovers enhance year-round interest, allowing the garden to evolve organically while maintaining structure, beauty, and a sense of calm throughout the seasons.
Tain
Modern-naturalistic garden in Tain designed as a private retreat from the road. It features five main areas: a prairie-style entrance border, a sheltered wall border, a beach-style pond with seating, a trellis divider for climbers, and a central seating area for reflection. Meandering grass paths and curved borders create flow and distinct “rooms.” Planting is diverse and year-round, with bulbs, perennials, shrubs, and climbers suited to sunny and shady areas. Materials include gravel, cobbles, corten steel, and wooden trellis. Features like rose obelisks, garden artwork, birdbaths, water, and lighting enhance beauty, wildlife, and relaxation.





Fortrose
This planting scheme designed for garden in Fortrose, creates a resilient, wildlife-friendly garden designed for the Scottish Highlands, combining strong year-round structure with seasonal colour and sensory interest. Predominantly hardy plants are used, with a small number of feature plants requiring simple winter protection. A naturalistic mix of evergreen shrubs, herbaceous perennials, climbers, bulbs, and productive plants provides texture, movement, and long-lasting interest. Soil preparation, mulching, and container planting are carefully considered to support healthy growth, while the design encourages biodiversity and extends enjoyment of the garden throughout the year.
We've been delighted with the outcome of Maria's planting design.
Claire Ellis, Fortrose

















































